Gable Portacabin Sizes & Prices
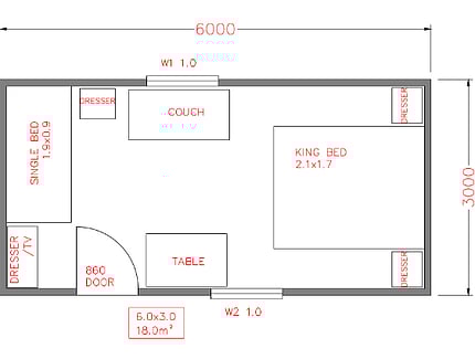
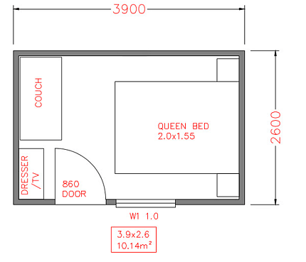
The below layouts show a suggested furniture layout, furniture is not included with the hire.
Some sizes may vary slightly from those listed below and some gable models have ranch-sliders instead of an opening door. The measurements given below are the outside measurement required to fit the cabin in place.
Minimum 6 month hire on all Portacabins.





